
Ahad Woods is a 7+ ACRE VILLA community designed for people who prefer calm surroundings, wide roads, & good connectivity.
Nothing loud. Nothing complicated. Just a well-planned place to build a home that feels right.

"Not everything needs to be loud to be valuable."
Ahad Woods is built on the belief that a good home starts with a good plan — proportionate plots, natural light, honest construction, and the kind of quiet that lets you think clearly.
Ownership
At Ahad Woods, you own your land and your villa — a rare combination that gives clarity, comfort, and long-term value. Choose from thoughtfully designed villa options built on proportionate land parcels. Each villa is crafted to work effortlessly with natural light, ventilation, and practical room planning.
Nothing is forced. Nothing is wasted. Everything has a purpose.



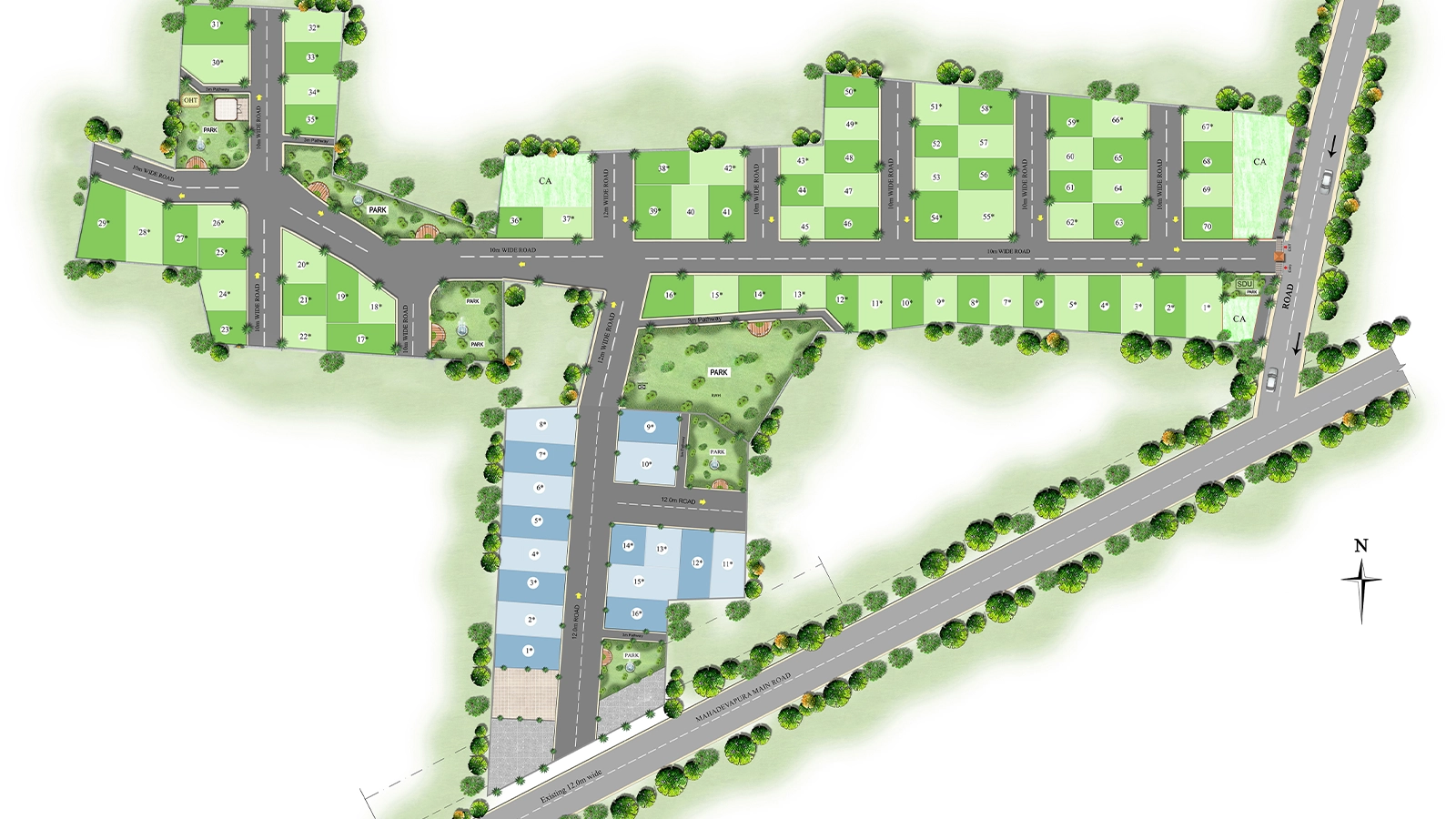
Masterplan

A clear and sensible masterplan that balances open spaces, road widths, and villa positions.
Villa Specifications
Project Amenities



Gallery






Location
Strategically positioned on Mahadevapura Main Road, Ahad Woods offers the perfect balance of connectivity and calm. Close to everything you need, far enough from everything you don't.
Your land. Your villa. Your life — built with intention, not noise. Come see what calm looks like.
Get in Touch
Whether you're ready to visit or just exploring, we'd love to hear from you. Fill in your details and our team will reach out within 24 hours.

Adding {{itemName}} to cart
Added {{itemName}} to cart